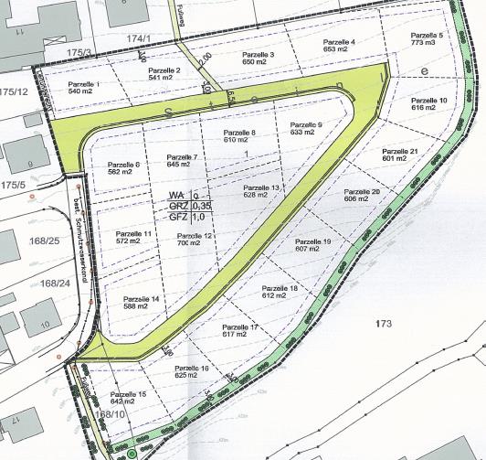
Wohnbaugebiet "Im Badgarten"
Ein neues Wohngebiet mit kurzen Anbindungen an die Kreisstadt und Umgebung in intimer Lage entsteht am Ortsrand von Störnstein mit gut 20 Bauparzellen. Die näheren Daten zu den Grundstückspreisen, Verkaufsstart, Erschließungsstand usw. werden zu einem späteren Zeitpunkt bekannt gegeben.








